- 尊享国企
- 整装服务
点击了解更多老房解决方案
5大空间·华丽变身
改造前
左右滑动试试
-
空间利用
- 根据户型设计
- 合理利用空间
- 做足收纳,绝不浪费
-
一屋多功能
- 根据需求定制
- 满足各种生活场景
- 既是卧室也做书房
-
老房加固
- 全屋满墙贴网格布
- 防开裂、增强密度
- 杜绝安全隐患
-
水电改造
- 精选优质安全辅材
- 绿色、环保、健康
- 韧性好,寿命更长
在线提交
装修需求
设计师上门
免费量房
领取全屋
规划方案
获取您家的装修方案
立即报名
一站式整装解决方案
专业基础拆除
- · 基层拆除
- · 洁具拆除
- · 灯具拆除
- · 门窗垭口拆除
- · 木作拆除
- · 五金拆除
- · 水电拆除
- · 墙顶地饰面拆除
专业基础拆除
水电改造
- · 水电线路整体设计
- · 墙面开槽布线
- · 水管电线重装
水电改造
全屋设计
- · 整体风格设计
- · 空间配置方案
- · 收纳空间规划
全屋设计
整体施工
- · 水电施工
- · 木工施工
- · 瓦工施工
- · 油工施工
整体施工
主材辅材
- · 橱柜、卫浴
- · 地板、瓷砖
- · 木门
- · 吊顶
- · 地漏
- · 墙漆
- · 踢脚线
- · 过门石等
主材辅材
看资深设计师如何改造二手学区房 空间扩容30%
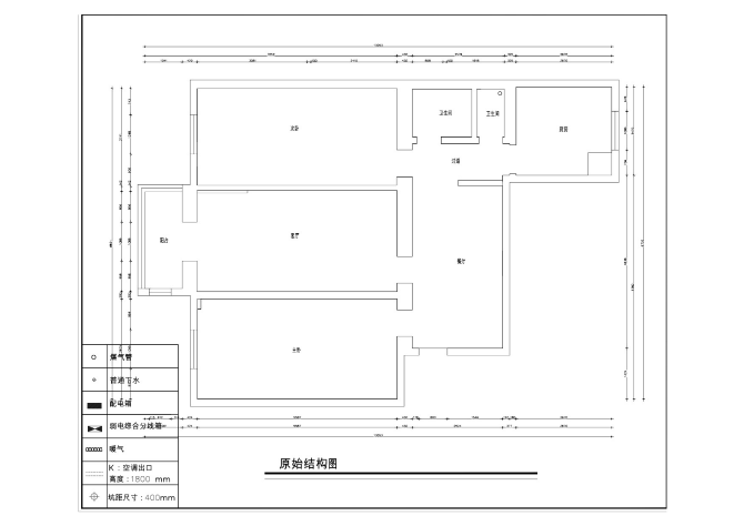
原始户型图
户型:三室一厅
面积:120 ㎡
业主家庭:
房子是业主买的二手房,为了孩子考学做的资本投入,原是一家三口居住,妻子刚刚生下二孩。
改造需求:
房屋老化严重,布局不合理,入户门直对着卫生间的门,动线很不方便。
业主希望在满足原有三居室的同时,可以多出来一家人共同相处娱乐的空间,所以本案的改造目的是三室一厅改造成三室两厅,合理布局,增大储物,让动线更流畅。
改造后户型图
改造解析:
原始户型入户门直接对着卫生间,在居家布局风水上来说是极其避讳的布局。三个卧室并排,缺少了中心交融点,无法满足业主想要和家人拥有共同相处娱乐的空间。
改造后,借用了卫生间侧墙作为玄关;由于人口较多,做了两个卫生间处理方式,以便后期使用;垃圾井拆除,厨房由原L型可改造成U型厨房,增大了储物及操作空间;在居室部分,将原来两个儿童房打通,保留两个儿童房的同时,多打造出一个多功能室,用于以后家人共处的活动房间。
立即预约设计师
我们都选择了68年国企品质
国企品质·整装无忧
未 来 的 家 我 们 一 起 创 造
-
一站式整装解决方案
-
68年国企品质
-
7大标准化保障体系
-
55天标准工期
-
256道严谨工序
-
147项质检标准
-
45项不合格必砸
-
10年超长质保
预估报价
元
新房
老房








京ICP备05085633号-6

